Impressum
Projekte
Büro
KontaktDatenschutz
Filter
Kontakt
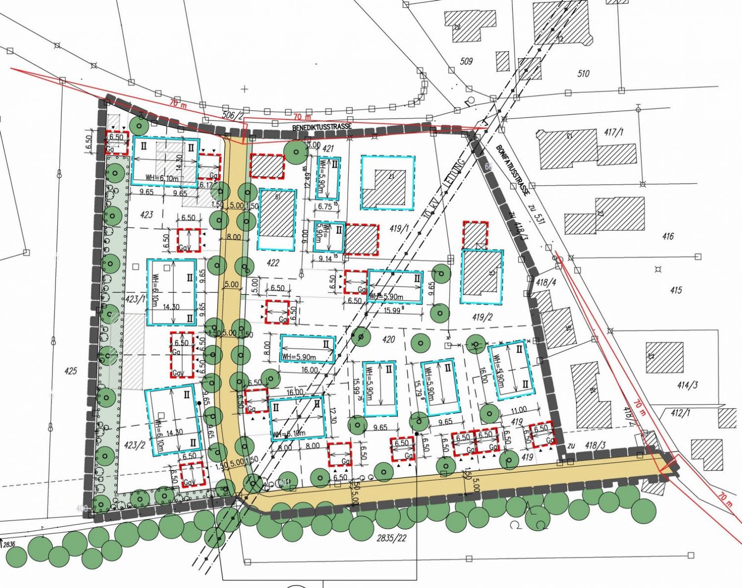
Bauherr
Gemeinde
Zeitraum
2003-2012
Leistungen
Bebauungsplan, Gestaltungsplan, Grünordnungsplan