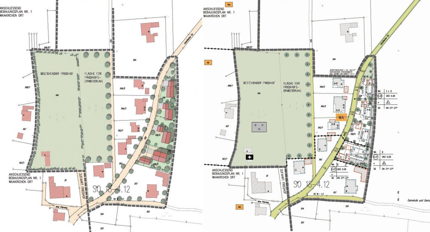
Diverse Bebauungspläne

BPWS

Bebauungsplan, Gestaltungsplan, Grünordnungsplan

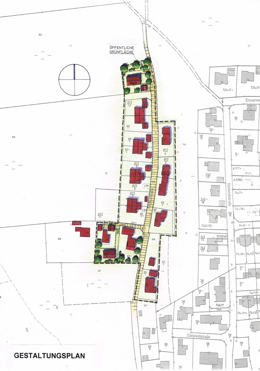
WBW

Bebauungsplan, Gestaltungsplan, Grünordnungsplan

ASW

Bebauungsplan, Gestaltungsplan, Grünordnungsplan

GMO

Bebauungsplan, Gestaltungsplan, Grünordnungsplan

VS

Bebauungsplan, Gestaltungsplan, Grünordnungsplan

SSW

Bebauungsplan, Gestaltungsplan, Grünordnungsplan

SBK

Bebauungsplan, Gestaltungsplan, Grünordnungsplan

BPH

Bebauungsplan, Gestaltungsplan, Grünordnungsplan

BPWO

Bebauungsplan, Gestaltungsplan, Grünordnungsplan