Impressum
Projekte
Büro
KontaktDatenschutz
Filter
Kontakt
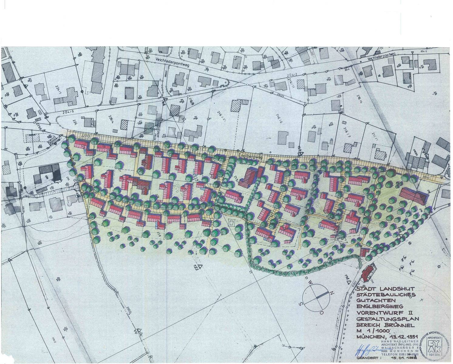
Bauherr
Stadt
Zeitraum
1991-1992
Leistungen
Städtebauliches Gutachten, Entwurf Gestaltungsplanung inkl. Verkehrskonzept und Grünordnungsentwurf